Search

Leave a Message

Thank you for your message. I will be in touch with you shortly.

Explore Our Properties

Property Description

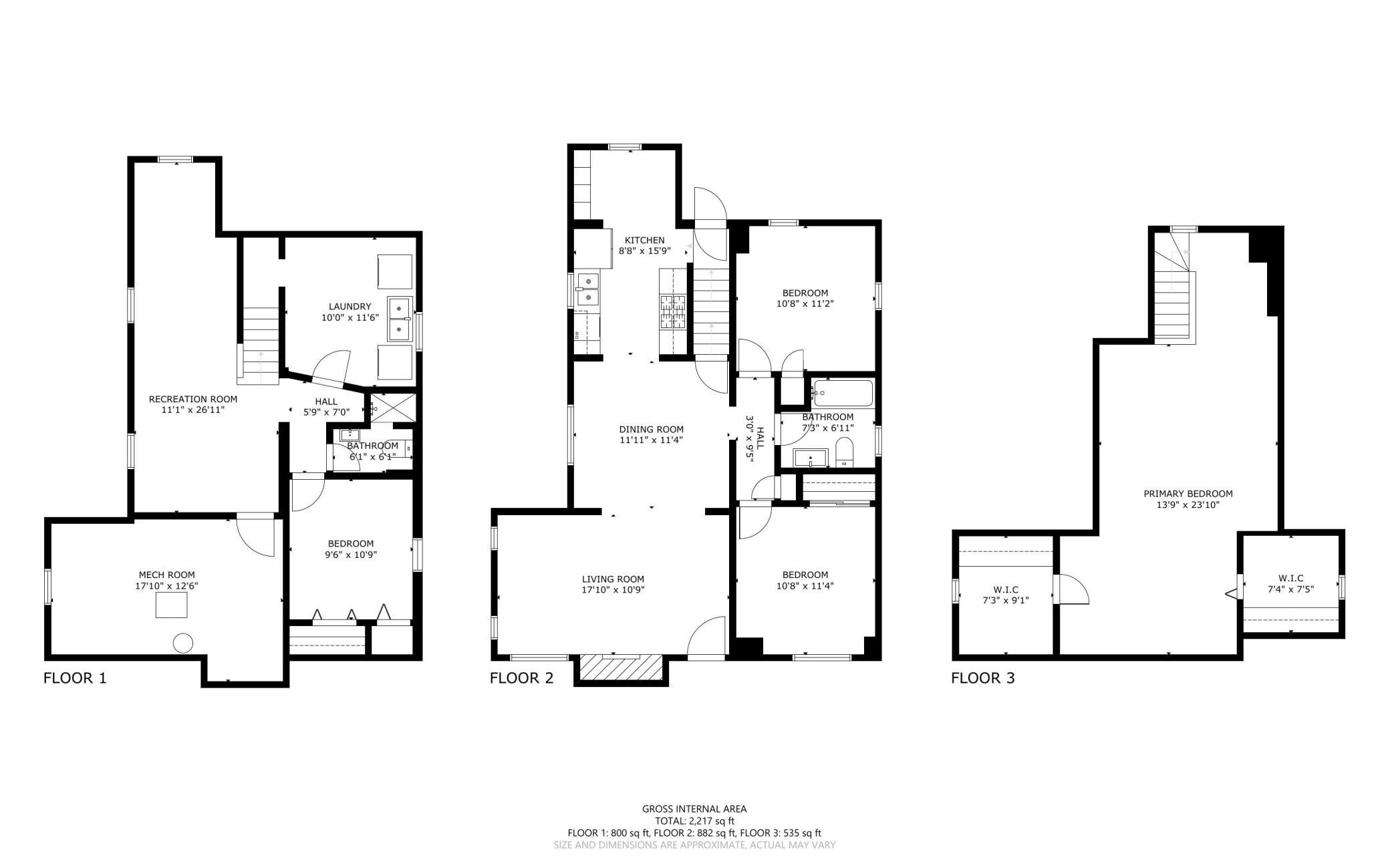
This 4 bedroom storybook Tudor is located across the street from Cavell Playground. Recently renovated with key original details maintained, you will love the flow and charm this home offers. The living room, dining room & kitchen flow perfectly together and will encourage you to entertain. 2 main floor bedrooms are well situated with main floor full bath in between. The upper level hosts generous primary bedroom with 2 fantastic walk-in closets. Lower level features nice family room area, 3/4 bath and bedroom which is currently used as exercise room and could also be an office, or studio. There is loads of parking in the 2 car garage. Oversized gives you the fenced in yard of Fido's dreams! Room to run, play & garden too. Superb location: close to shops, restaurants, bus lines, parks & more! Come and see!

Overview

Property Status
Sold
Lot Size
7,405.2 Sq.Ft.
MLS ID
6503445
Property Type
Residential
Year Built
1930

Features & Amenities

Total Area
2,359 Sq.Ft.
Stories
2
Garage Spaces
2.0
Water Source
City Water/Connected
Roof
Age 8 Years or Less
Parking
Detached, Concrete
Heat Type
Forced Air
Air Conditioning
Central Air
Appliances
Dishwasher, Dryer, Exhaust Fan, Gas Water Heater, Range, Refrigerator, Stainless Steel Appliances
Sewer
City Sewer/Connected
Disability Features
None
School District
Minneapolis
Sales Price
$425,000
Real Estate Tax
$5,263/yr

Downloads

3442 Fillmore Street NE

Schedule a Tour

I would love to help you see this beautiful home! As a full-service real estate agent, I can help you tour. Please submit an offer, and answer questions about the buying process.

Enter a valid email

Thank you

for your interest in 3442 Fillmore Street NE, Minneapolis, MN 55418

back to page
3442 Fillmore Street NE
Navigate

I'm Interested In

3442 Fillmore Street NE

or
  • CallDolly Langer

    License #40241656

    (612) 280-8898
  • Follow Us On Instagram